Horská chata Schiestlhaus – Hochschwab
Ďakujeme za pomoc pri príprave tohto príspevku pofesorovi Treberspurgovi a portálu www.zelenaarchitektura.sk , ktorý nám poskytol všetky údaje o projekte.
Zaujímavosťou tejto budovy je, že realizačný návrh stál necelé dva milióny euro , čo je približne toľko ako všetky ostatné náklady súvisiace s vybudovaním tejto stavby. (http://21stoleti.cz/blog/2009/01/19/hotel-ktery-se-snesl-z-oblohy/). Je to jeden z príkladov, kde si investor, ktorý má bohaté skúsenosti (Klub rakúskych turistov - Osterreichischer Touristenklub) uvedomil dôležitosť prípravnej fázy. Ak chcel, aby stavba v takýchto náročných podmienkach bola nielen bezproblémovo zrealizovaná, ale aj z dlhodobého hľadiska dobre fungovala, kvalitný návrh bol predpokladom úspechu. Prostriedky venované na prípravu (hoci sú také vysoké ako cena celej stavby) sú chápané ako tá najlepšia investícia, ktorá sa z dlhodobého hľadiska bohato vráti.
Plán pre realizáciu projektu „Schiestlhaus am Hochschwab“ bol vyvinutý v rámci výskumnej úlohy skupiny ARGE solar4alpin pre „HAUS DER ZUKUNFT“ (Dom budúcnosti) a zodpovedá aktuálnemu stavu techniky v oblasti energeticky efektívnej a solárnej výstavby. Koncept prihliada k špeciálnej výškovej polohe domu a špecifický spôsob využitia budovy ako turistická základňa.
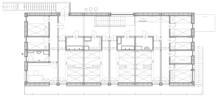
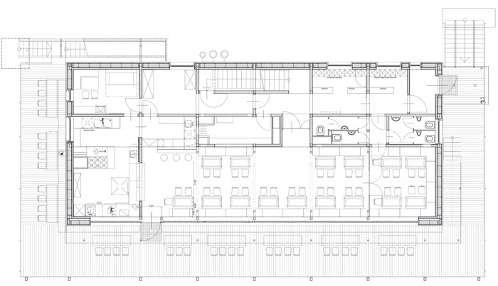
Zvláštna pozornosť bola venovaná pôdorysnému riešeniu. Stavebné miesto v lokalite Hochschwab a jeho špecifická charakteristika umožňujú jasnú orientáciu na juh a uľahčujú tým, dimenzovanie návrhu pre dosiahnutie maximálnych ziskov tepla, teda rozsiahleho využitia priaznivej ponuky žiarenia vo väčších nadmorských výškach. Horské chaty predstavujú vzhľadom na využitie budovy špeciálny prípad, pretože počet ich užívateľov je závislý od ročného obdobia, sezóne a počasia. Koncept termického zónovania spočíva na úvahe, že existuje určitá analógia medzi maximálnou návštevnosťou a maximálnym slnečným ziskom. Pred a po sezóne sa vyskytujú dlhšie obdobia zlého počasia, počas ktorých hostia skoro vôbecneprichádzajú. Pre tieto rozdielne situácie bola snaha vyvinúť flexibilný koncept budovy. To znamená, že aktívne oblasti v budove môžu podľa požiadaviek rásť alebo sa zmenšovať.
Extrémna poloha (2.154 m) a koncepcia horskej chaty vyžadujú interdisciplinárny a inovačný prístup k technickému a elektrickému vybaveniu budovy. Vďaka použitej technológii pasívneho domu, definovaniu termických zón a využitiu kontrolovaného vetrania s výkonným spätným ziskom tepla, chata zostáva aj pri plnom obsadení tepelne sebestačná.
Cieľom projektu je vyhrievať dom iba cez vetrací systém. Na ventiláciu obytných miestností, spálni a hostinských miestností sú nasadené vetracie zariadenia pre pasívne domy so spätným ziskom tepla (účinnosť 85%). Odvod vzduchu z kuchyne prebieha tiež cez výmenník tepla.
Solárny ohrev vody
Južná fasáda chaty slúži k využívaniu slnečnej energie, pričom do nej bolo integrovaných 46m2 slnečných kolektorov.
Solárne (Fotovoltaické) panely
Solárne moduly sú umiestnené na zábradlí predsunutej terasy. Pokrývajú v bežnom roku cca. 70% spotreby elektrickej energie.
Využitie pitnej a dažďovej vody
Zásobník na pitnú vodu je umiestnený v pivnici a dimenzovaný na ročnú kapacitu potreby vody – cca. 34 m3. Dažďová voda je vedená hrubým filtrom do cisterny a odtiaľ upravovaná viacerými filtrami na pitnou vodu. Odpadová voda Nasadené sú suché toalety. Všetky odpadové vody sú natoľko spracované čističkou (stupeň čistenia 99% = kvalita vody pre kúpalisko), že môžu bezpečne vsiaknuť do zeme.
- ADRESA: Hochschwab, Steiermark
- STAVEBNÍK:Osterreichischer Touristenklub
- NÁVRH: solar4alpin (Rezac-Stieldorf-Oettl-Treberspurg)
- PLÁNOVANIE: ARGE pos architekten a Treberspurg & Partner Architekten
- VEDENIE PROJEKTU: DI Marie Rezac, Arch DI Christian Wolfert
- STATIKA: DI Robert Salzer, DI Gerald Gallasch
- TECHNICKÉ ZARIADENIE BUDOVY: DI Elmar Wimmer (vetranie, sanita); DI(FH) Gernot Becker (elektrotechnika, solárna energia); DI Gottfried Steinbacher (odpadové vody)
- STAVEBNÁ FYZIKA: DI Dr. Karin Stieldorf, DI Wilhelm Hofbauer, DI Thomas Zelger
- ROZSAH: 550 m2 úžitkovej plochy, 70 lôžok, 160 miest na sedenie (inkl. terasy)
- DÁTUM UKONČENIA: 2005
- NÁKLADY: cca. 1,6 Mio. (ATS 22 Mio.) inkl. demolácia starej stavby a zariadenia.


